网站首页 美食营养 游戏数码 手工爱好 生活家居 健康养生 运动户外 职场理财 情感交际 母婴教育 生活知识 生活百科 知识问答 更多知识

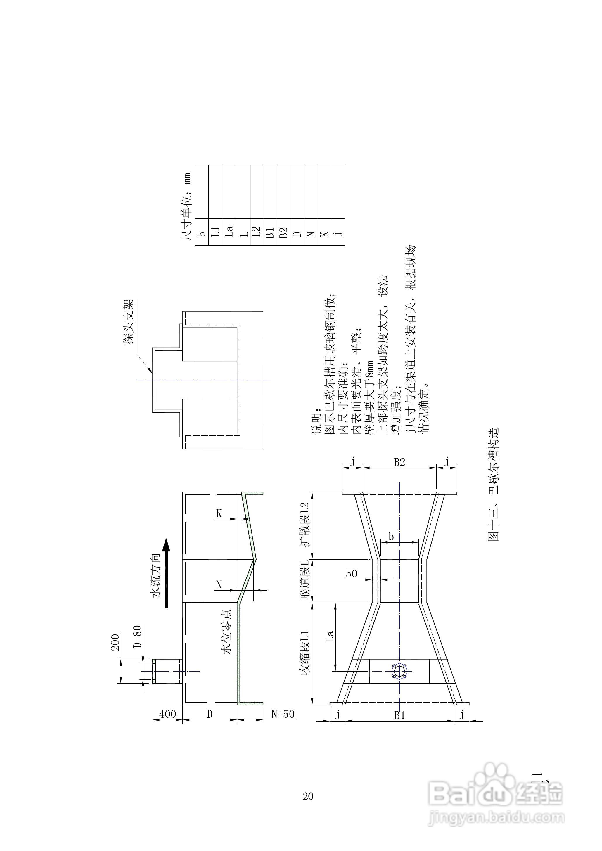
Wl-1a型超声波明渠流量计使用说明书:[3]

时间:2026-02-12 09:08:56

本篇为《Wl-1a型超声波明渠流量计使用说明书》,主要介绍该产品的使用方法以及常见故障解决方案。


Wl-1a型超声波明渠流量计使用说明书:[3]

Wl-1a型超声波明渠流量计使用说明书:[3]

Wl-1a型超声波明渠流量计使用说明书:[3]

Wl-1a型超声波明渠流量计使用说明书:[3]

Wl-1a型超声波明渠流量计使用说明书:[3]

Wl-1a型超声波明渠流量计使用说明书:[3]

Wl-1a型超声波明渠流量计使用说明书:[3]

Wl-1a型超声波明渠流量计使用说明书:[3]

(共篇)上一篇:
© 2026 小知经验
信息来自网络 所有数据仅供参考
有疑问请联系站长 site.kefu@gmail.com